33 High Street, Wauchope

33 High Street, Wauchope

  • 7 car spaces
  • Land Size - Approx 758.8 Square metres
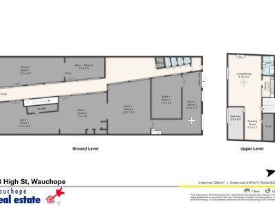
  • Floor Area - 623 Square metres

High Profile Shopping Arcade in CBD Wauchope

An exceptional prime retail opportunity now exists in Wauchope comprising of 7 leased shop spaces in the centre of Wauchope's CBD. Shops are currently leased with well established tenants in place.
This is a bustling location with high visibility and busy foot traffic - coffee shops and banks are close by. Maintenance of the building is meticulous.
This is the ideal time to invest in this thriving community - and all within 15 minutes to Port Macquarie.

Call Neroli Reid for an Information memorandum 0488 060 755.

• 7 leased shops
• 7 carparking spaces
• Long term tenants
• Rear building access
• Main street location
• Brick construction
• Well maintained building

Disclaimer: All information contained herein is obtained from property owners or third-party sources which we believe are reliable. We have no reason to doubt its accuracy, however we cannot guarantee it. All interested person/s should rely on their own enquiries.

Mortgage Calculator

$3,078

Estimated monthly repayments based on advertised price of $1750000.

Property Price

Deposit

Loan Amount

Interest Rate (p.a)

Loan Terms


Property Location

© 2022 - 2026 Wauchope Real Estate, All Rights Reserved | Privacy Policy
Powered by Proptech Group